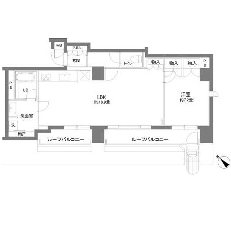
ブランド CASTALIA カスタリアお茶の水 703 こちらの物件は、 初期費用より50,000円お値引きさせていただきます お問い合わせ メール メールアドレス メールで問い合わせる LINE LINEで問い合わせる 物件概要 間取 63.13㎡ (1LDK) 方角 - 階数 7階 住所 東京都千代田区神田小川町3丁目24-1 交通 東京メトロ半蔵門線 神保町駅 徒歩5分 / 東京メトロ千代田線 新御茶ノ水駅 徒歩5分 竣工 2002年8月 金額関連 間取 63.13㎡ (1LDK) 賃料 298,000円 共益費 12,000円 敷金 298,000円 礼金 298,000円 鍵交換費用 22,000円(内税) 契約関連 間取 63.13㎡ (1LDK) 契約期間 2年間 契約時期 相談