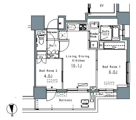
ブランド PARK AXIS パークアクシス仲御徒町 604 こちらの物件は、 初期費用より50,000円お値引きさせていただきます お問い合わせ メール メールアドレス メールで問い合わせる LINE LINEで問い合わせる 物件概要 間取 46.51㎡ (2LDK) 方角 北向き 階数 6階 住所 東京都台東区台東3丁目5-3 交通 東京メトロ日比谷線 仲御徒町駅 徒歩7分 / JR山手線 御徒町駅 徒歩9分 / 都営大江戸線 新御徒町駅 徒歩8分 竣工 2007年11月 金額関連 間取 46.51㎡ (2LDK) 賃料 239,000円 共益費 10,000円 敷金 239,000円 礼金 239,000円 鍵交換費用 22,000円 契約関連 間取 46.51㎡ (2LDK) 契約期間 - 契約時期 2025年12月中旬