パークアクシス元浅草ステージ 902
こちらの物件は、
初期費用より30,000円お値引きさせていただきます

お問い合わせ

メール
LINE

物件概要

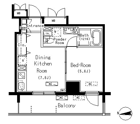
間取
31.67㎡ (1DK)
方角
西向き
階数
9階
住所
東京都台東区元浅草1丁目8-11
交通
都営大江戸線 新御徒町駅 徒歩3分 / JR山手線 御徒町駅 徒歩13分 / つくばエクスプレス 新御徒町駅 徒歩3分
竣工
2008年4月

金額関連

間取
31.67㎡ (1DK)
賃料
147,000円
共益費
15,000円
敷金
147,000円
礼金
0円
鍵交換費用
22,000円

契約関連

間取
31.67㎡ (1DK)
契約期間
-
契約時期
即入居可