パークアクシス元浅草ステージ 1301
こちらの物件は、
初期費用より50,000円お値引きさせていただきます

お問い合わせ

メール
LINE

物件概要

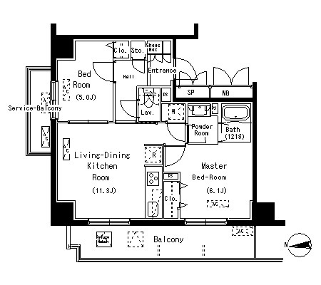
間取
51.35㎡ (2LDK)
方角
北西向き
階数
13階
住所
東京都台東区元浅草1丁目8-11
交通
都営大江戸線 新御徒町駅 徒歩3分 / JR山手線 御徒町駅 徒歩13分 / つくばエクスプレス 新御徒町駅 徒歩3分
竣工
2008年4月

金額関連

間取
51.35㎡ (2LDK)
賃料
262,000円
共益費
10,000円
敷金
262,000円
礼金
262,000円
鍵交換費用
22,000円

契約関連

間取
51.35㎡ (2LDK)
契約期間
-
契約時期
2025年12月下旬