パークタワー勝どき サウス棟 938
こちらの物件は、
初期費用より50,000円お値引きさせていただきます

お問い合わせ

メール
LINE

物件概要

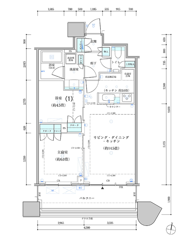
間取
56.52㎡ (2LDK)
方角
南向き
階数
9階
住所
東京都中央区勝どき4丁目6-1
交通
都営大江戸線 勝どき駅 徒歩2分
竣工
2023年8月

金額関連

間取
56.52㎡ (2LDK)
賃料
360,000円
共益費
20,000円
敷金
360,000円
礼金
180,000円
鍵交換費用
33,000円

契約関連

間取
56.52㎡ (2LDK)
契約期間
-
契約時期
2025年12月中旬