THE TOKYO TOWERS MIDTOWER 1219
こちらの物件は、
初期費用より50,000円お値引きさせていただきます

お問い合わせ

メール
LINE

物件概要

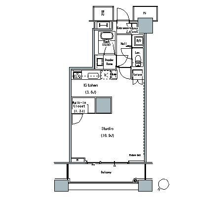
間取
50.59㎡ (1K)
方角
北西向き
階数
12階
住所
東京都中央区勝どき6丁目3-2
交通
都営大江戸線 勝どき駅 徒歩6分
竣工
2008年1月

金額関連

間取
50.59㎡ (1K)
賃料
231,000円
共益費
15,000円
敷金
462,000円
礼金
231,000円

契約関連

間取
50.59㎡ (1K)
契約期間
-
契約時期
2026年1月中旬