パークキューブ銀座イースト 304
こちらの物件は、
初期費用より50,000円お値引きさせていただきます

お問い合わせ

メール
LINE

物件概要

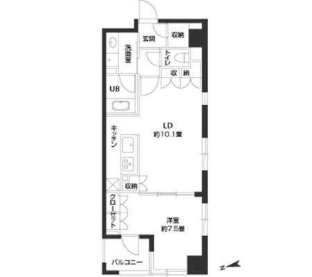
間取
50.01㎡ (1LDK)
方角
西向き
階数
3階
住所
東京都中央区湊3丁目1-3
交通
東京メトロ有楽町線 新富町駅 徒歩5分 / JR京葉線 八丁堀駅 徒歩6分 / JR山手線 有楽町駅 徒歩20分
竣工
2005年6月

金額関連

間取
50.01㎡ (1LDK)
賃料
200,000円
共益費
10,000円
敷金
200,000円
礼金
200,000円
鍵交換費用
16,500円

契約関連

間取
50.01㎡ (1LDK)
契約期間
-
契約時期
2025年12月中旬