パークスフィア牛込神楽坂 506
こちらの物件は、
初期費用より50,000円お値引きさせていただきます

お問い合わせ

メール
LINE

物件概要

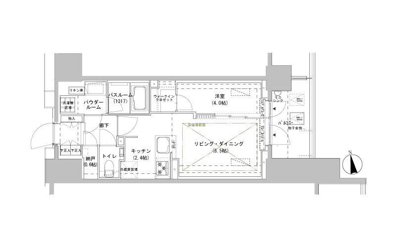
間取
40.01㎡ (1LDK)
方角
東向き
階数
5階
住所
東京都新宿区南山伏町3-3
交通
都営大江戸線 牛込柳町駅 徒歩4分 / 東京メトロ東西線 神楽坂駅 徒歩13分 / 都営大江戸線 牛込神楽坂駅 徒歩7分
竣工
2021年7月

金額関連

間取
40.01㎡ (1LDK)
賃料
216,000円
共益費
15,000円
敷金
216,000円
礼金
216,000円
鍵交換費用
16,500円

契約関連

間取
40.01㎡ (1LDK)
契約期間
-
契約時期
即入居可