コンフォリア東新宿 0420
こちらの物件は、
初期費用より50,000円お値引きさせていただきます

お問い合わせ

メール
LINE

物件概要

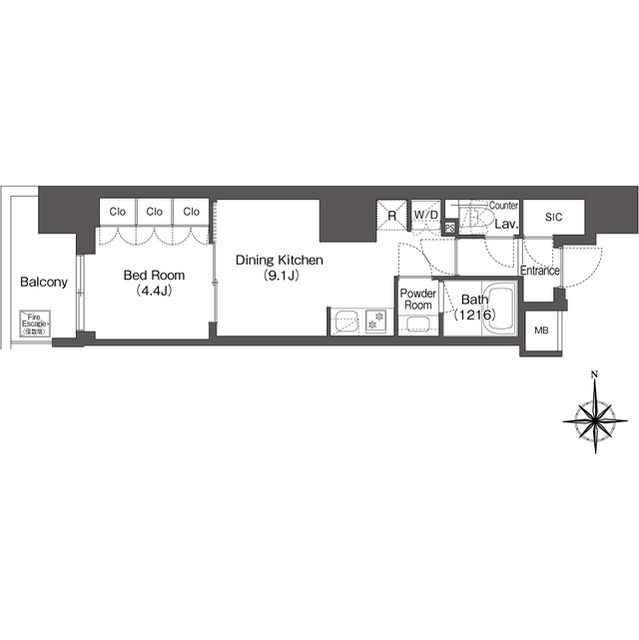
間取
34.64㎡ (1LDK)
方角
西向き
階数
4階
住所
東京都新宿区新宿6丁目27-48
交通
都営大江戸線 東新宿駅 徒歩2分 / 東京メトロ副都心線 東新宿駅 徒歩4分
竣工
2023年7月

金額関連

間取
34.64㎡ (1LDK)
賃料
232,000円
共益費
10,000円
敷金
232,000円
礼金
0円

契約関連

間取
34.64㎡ (1LDK)
契約期間
2年間
契約時期
2025年11月下旬