エルスタンザ代官山 0205
こちらの物件は、
初期費用より50,000円お値引きさせていただきます

お問い合わせ

メール
LINE

物件概要

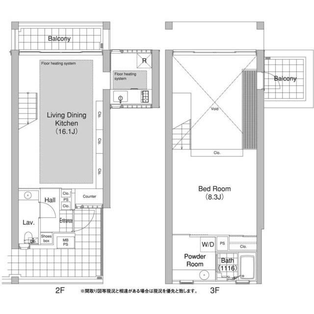
間取
59.59㎡ (1LDK)
方角
北向き
階数
2階
住所
東京都渋谷区恵比寿西1丁目21-15・14
交通
東京メトロ日比谷線 恵比寿駅 徒歩2分 / JR山手線 恵比寿駅 徒歩5分
竣工
2005年1月

金額関連

間取
59.59㎡ (1LDK)
賃料
351,000円
共益費
10,000円
敷金
351,000円
礼金
351,000円

契約関連

間取
59.59㎡ (1LDK)
契約期間
2年間
契約時期
即入居可